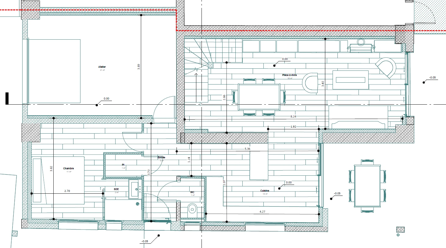
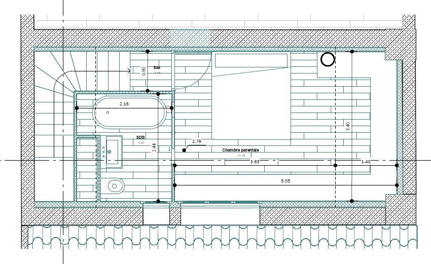
Réhabilitation Grange - Seysses
Réhabilitation d'une Grange - Seysses
- Année : 2025
- Lieu : Seysses
- Maîtrise d’ouvrage : Privée
- Maîtrise d’œuvre : Atelier Bebo
- Programme : Réhabilitation d'une grange en habitation
- Superficie : 80m²
- Coût : non communiqué
- Mission : Permis de construire
Atelier d'architecture Seysses (31)
L'Atelier d'architecture Bebo vous propose son expertise pour tous vos projets de construction de maisons individuelles, bâtiments publics, logements collectifs, extensions de maisons, rénovations de bâtiments...
Nous pouvons intervenir sur les secteur de Seysses, Frouzins, Cugnaux, Muret, Tournefeuille, Fonsorbes, Saint Lys, Roques, Villeneuve Tolosane, Plaisance-du-Touch et leurs environs.
Contactez-nous afin de déterminer ensemble vos besoins via le formulaire de contact ou par téléphone au 06 45 35 08 90.
